10 Island Resort is located at the famed Miami Beach in Batu Ferringhi. The project comprises 266 condominium units and 11 semi-detached villas. The condominiums built-up area ranging from 1,100 to 3,200. Each standard unit comes with 3-bedrooms & 2-bathrooms.
FLOOR PLAN
I) CORNER UNIT :
TOTAL FLOOR AREA : 1,250 SF
II) INTERMEDIATE UNIT :
TOTAL FLOOR AREA : 1,100 SF
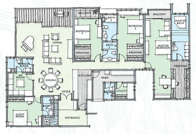
III) EXECUTIVE UNIT :
TOTAL FLOOR AREA : 2,500 SF
I) EXECUTIVE 2 IN 1 UNIT :
TOTAL FLOOR AREA : 2,400 SF
I) PENTHOUSE UNIT :
TOTAL FLOOR AREA : 3,200 SF
FACILITY
LOCATION MAP
SITE MAP
UNIT AVAILABLE :
TOTAL 4 EXECUTIVE UNIT : RM1.300 MIL
TOTAL 1 PENTHOUSE UNIT : RM1.900 MIL
*KINDLY CONTACT CALVIN-0164411341 FOR MORE INFORMATION OR VIEWING











